Lesson 6
Estimating Areas
6.1: Mental Calculations (5 minutes)
Warm-up
This warm-up encourages using different strategies to perform arithmetic operations mentally. One of these is the idea of compensation. These methods for performing mental math are arithmetic analogues of the composition and decomposition techniques students use in this lesson to calculate areas of shapes.
Launch
Display one problem at a time. Give students 1 minute of quiet think time per problem and ask them to give a signal when they have an answer and a strategy.
Student Facing
Find a strategy to make each calculation mentally:
\(599 + 87\)
\(254 - 88\)
\(99 \boldcdot 75\)
Student Response
For access, consult one of our IM Certified Partners.
Activity Synthesis
Ask students to share their ideas for how to perform these calculations mentally.
One key idea to bring out, for all three calculations, is the idea of compensation: identifying numbers close to the given ones for which the calculation can be done more efficiently. For 599 + 87, since 599 is only one away from 600 (a nice round number), it is natural to change 599 to 600. Adding 1 to 599 means that we need to subtract one from 87 to keep the sum the same. So the answer is 600 + 86, or 686. For 254 - 88, students may identify 90 or 100 as a nice number near 88 which is simpler to subtract. Subtracting 100 would be subtracting 12 more than 88, so we need to add 12 to 254. So the answer is 266 - 100, or 166. Finally for \(99 \boldcdot 75\), 99 is 1 short of 100, so \(99 \boldcdot 75\) is 75 short of 7500 or 7425.
Tell students that in this lesson they are going to use these kinds of strategies in a geometric context to find areas efficiently.
Design Principle(s): Optimize output (for explanation)
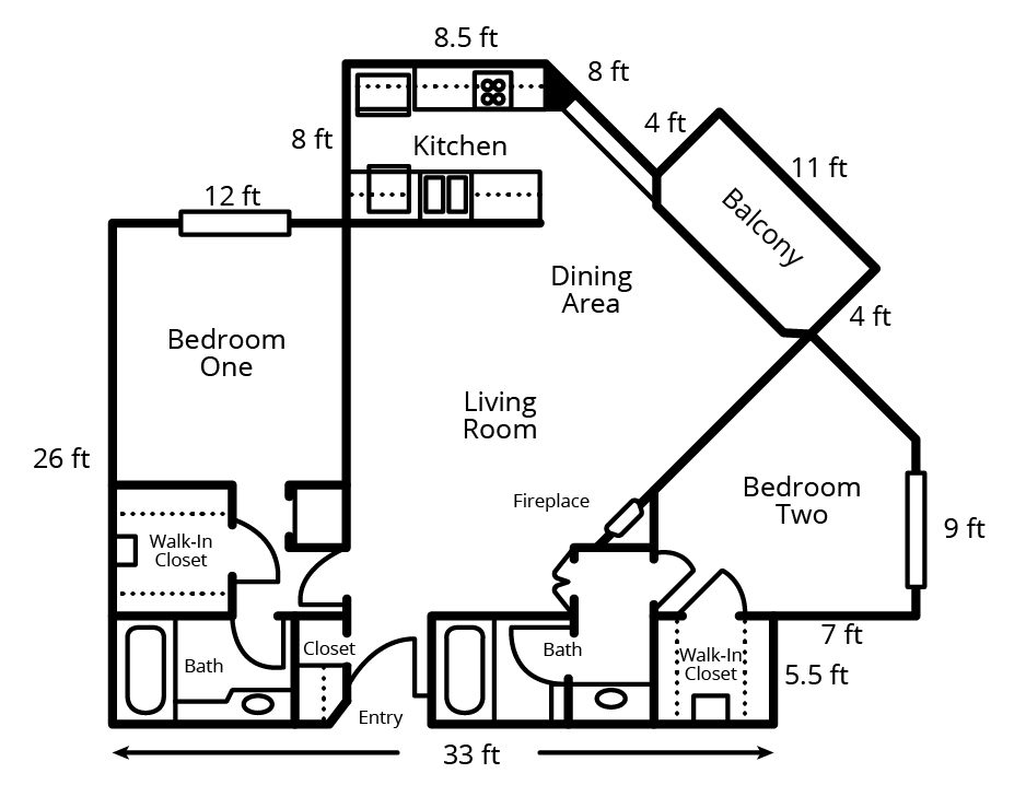
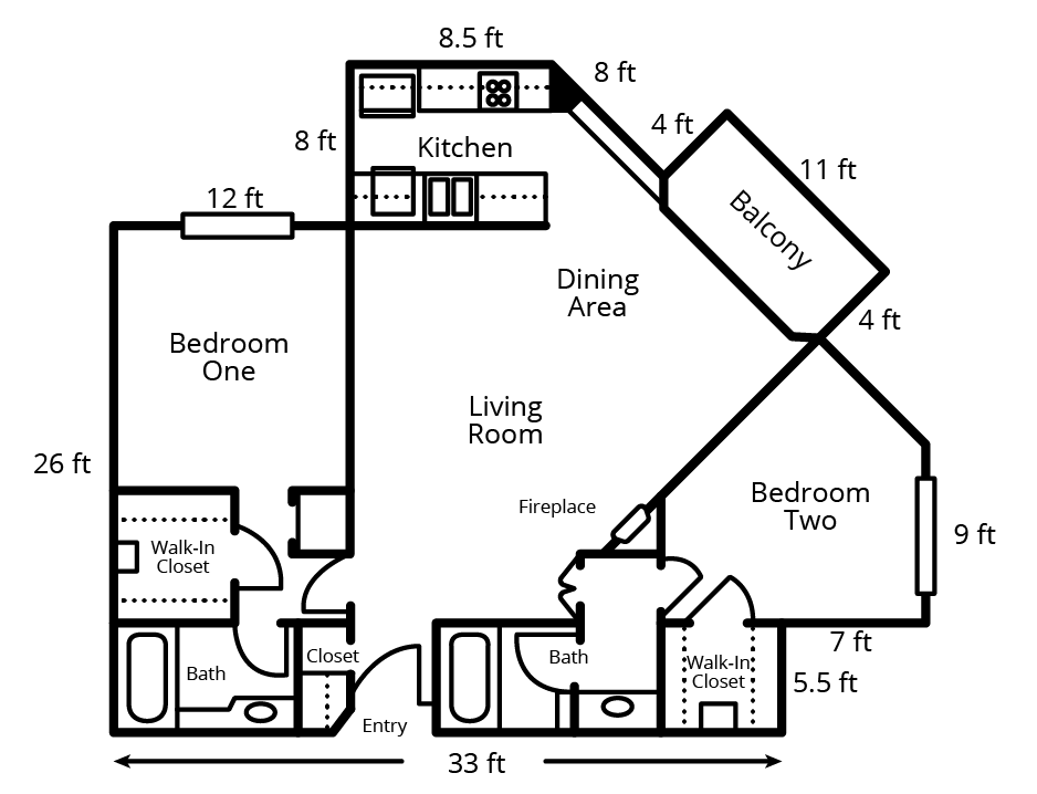
6.2: House Floorplan (15 minutes)
Activity
In this activity students calculate the area of an irregular shape presented in a scale drawing. In this case, students can calculate the area exactly by composing and decomposing triangles and parallelograms.
This activity draws upon MP7 in a geometric context much like the warm-up did in an arithmetic context. Choosing an appropriate way to compose and decompose the floor plan of the house in order to make calculations efficient is analogous to choosing how to rewrite numbers in order to make finding their sum, difference, or product as efficient as possible.
Monitor for students who focus on decomposing the floor plan and for students who compose the floor plan with additional shapes to make a rectangle. For students who focus on decomposing the floor plan, the biggest challenge will be the right side of the house.
Launch
Given students 4–5 minutes of quiet work time followed by whole-class discussion.
Supports accessibility for: Language; Organization
Design Principle(s): Cultivate conversation; Support sense-making
Student Facing
Here is a floor plan of a house. Approximate lengths of the walls are given. What is the approximate area of the home, including the balcony? Explain or show your reasoning.

Student Response
For access, consult one of our IM Certified Partners.
Anticipated Misconceptions
If students struggle getting started finding the area of the floor plan, consider suggesting that they use composition and decomposition to break the floor plan up into familiar shapes whose area can be calculated.
Activity Synthesis
Select students to share their reasoning in this sequence:
- decomposing the floorplan into various rectangles and triangles
- composing the floorplan with other shapes to create a large rectangle
Composing to make a bigger shape and then taking away the excess area is very much like finding \(99 \boldcdot 75\) in the warm-up by first calculating the larger product \(100 \boldcdot 75\) and then removing 75. In both cases, something is being added to facilitate the calculation and then an adjustment is made at the end to take away the excess that was added.
6.3: Area of Nevada (15 minutes)
Activity
In this activity students first identify the information needed to estimate the area of the state of Nevada from a map. Next, they use strategies developed in earlier work to make an estimate. The area can only be estimated as the shape is more complex and not a polygon. Like in the previous activity, monitor for these two strategies:
- Enclosing the image of the state in a rectangle, finding the area of the rectangle, and subtracting the area of a right triangle
- Decomposing the image of the state into a rectangle and a right triangle, finding the area of each, and combining the two
These two methods work equally well for this shape. Also, some students may notice and account for the missing area in the southeast corner of the state and others may not. As students work, notice the approaches they use and select one or two students who use each strategy to share during the discussion.
Launch
Arrange students in groups of 2. Have students close their books or devices. Display this map of Nevada that does not have a scale, and invite students to share what they notice and wonder.

Some things students might notice:
- The shape of the state looks like a rectangle with a corner cut off and a bite taken out.
- The shape of the state could be decomposed into a rectangle and a triangle.
Some things students might wonder:
- How long are the side lengths of the state?
- What is the area of Nevada?

Supports accessibility for: Language; Social-emotional skills
Student Facing
Estimate the area of Nevada in square miles. Explain or show your reasoning.

Student Response
For access, consult one of our IM Certified Partners.
Student Facing
Are you ready for more?
The two triangles are equilateral, and the three pink regions are identical. The blue equilateral triangle has the same area as the three pink regions taken together. What is the ratio of the sides of the two equilateral triangles?

Student Response
For access, consult one of our IM Certified Partners.
Anticipated Misconceptions
If students decompose the image of the state into a rectangle and triangle, they may use the 270 miles for a side length of the rectangle instead of finding the difference of the 490 miles on the opposite side and 270 miles. Ask them to check their answer with a partner and reevaluate their calculations.
Activity Synthesis
The goal of this discussion is for students to understand the distinction between calculating the areas of geometric objects and estimating areas of regions on maps.
First, display these questions for students to discuss with their partners:
- How did you make your estimate?
- If your estimates are not the same, are they close? What accounted for the difference?
Ask students how finding the area of Nevada in this activity was the same as finding the area of the floorplan in the previous activity and how it was different.
- One way it was the same was that it was still helpful to decompose the region into rectangles and triangles. Strategies involving addition and strategies involving subtraction were both possible.
- An important difference is that the state is not a polygon. Some of the boundaries are not straight and the overall land is not completely flat. Assuming the state is flat and approximating the boundaries with line segments both lead to some error in the estimate.
Consider telling students that the actual area of Nevada is about 110,560 square miles.
Design Principle(s): Maximize meta-awareness; Support sense-making
Lesson Synthesis
Lesson Synthesis
Point out that students estimated areas of both large and small things in the world by approximating them with polygons. Go over the different strategies students used to estimate the area in this lesson and emphasize we can find the area of any polygon by decomposing it into triangles and rectangles and using formulas we know to find the area. In practice, it is important to be strategic when composing and decomposing, taking advantage of measurements that are known and avoiding measurements that are unknown or difficult to calculate.
Ask students to reflect on their recent work in finding area and discuss the following questions:
- "What things are important to think about when asked to find the area of a figure?"
- "What things do we know help us find area of any figure?"
It is important to consider the shape of the region, how polygons are helpful, and the ways polygons can be decomposed, rearranged or enclosed to find the area of the region.
6.4: Cool-down - The Area of Alberta (5 minutes)
Cool-Down
For access, consult one of our IM Certified Partners.
Student Lesson Summary
Student Facing
We can find the area of some complex polygons by surrounding them with a simple polygon like a rectangle. For example, this octagon is contained in a rectangle.
The rectangle is 20 units long and 16 units wide, so its area is 320 square units. To get the area of the octagon, we need to subtract the areas of the four right triangles in the corners. These triangles are each 8 units long and 5 units wide, so they each have an area of 20 square units. The area of the octagon is \(\displaystyle 320 - (4 \boldcdot 20)\) or 240 square units.

We can estimate the area of irregular shapes by approximating them with a polygon and finding the area of the polygon. For example, here is a satellite picture of Lake Tahoe with some one-dimensional measurements around the lake.
The area of the rectangle is 160 square miles, and the area of the triangle is 17.5 square miles for a total of 177.5 square miles. We recognize that this is an approximation, and not likely the exact area of the lake.
